- Zoning By-law 06-10 (text – excluding schedules)
- By-law 24-018 - Being a by-law of the Corporation of the Township of Minden Hills under the provisions of Section 34 of the Planning Act R.S.O. 1990, c. P. 13, as amended, to amend Comprehensive Zoning By-law No. 06-10.
Zoning By-law and Official Plan
Purpose of a Zoning By-law
A Zoning By-law identifies the zones that show how a property can be used. A property can be used for various land uses that range from residential to commercial to industrial to agricultural, along with many other land uses.
A zoning by-law contains provisions that regulate:
- how land can be used;
- what can be built on a property;
- the use, size, height, density and location of buildings and/or structures on a property; and,
- where a building and/or structure can be located on a property.
Even when a building permit is not required, all buildings and structures must comply with the Township's Zoning By-law.
Citizen's Guide to Land Use Planning
The Ministry of Municipal Affairs and Housing offers additional information on Citizen's Guide to Land Use Planning in Ontario and gives an overview of the planning process in the province and how it can affect you.
Township Zoning By-law
The former Townships of Anson, Hindon, Minden, Snowdon and Lutterworth amalgamated to become the Township of Minden Hills in 2001.
The Township of Minden Hills Zoning By-law is a comprehensive document which includes the bylaw, text and zoning map schedules for the entire geographical area.
Amendments to the Zoning By-laws are common. Accordingly, all information contained in the links below should be confirmed with Town Staff.
Zoning Schedules are not currently available on the Township website.
Planning staff are in the process of updating these maps. Excerpts of or confirmation of zoning for individual properties can be made available to you by contacting the Planning Department.
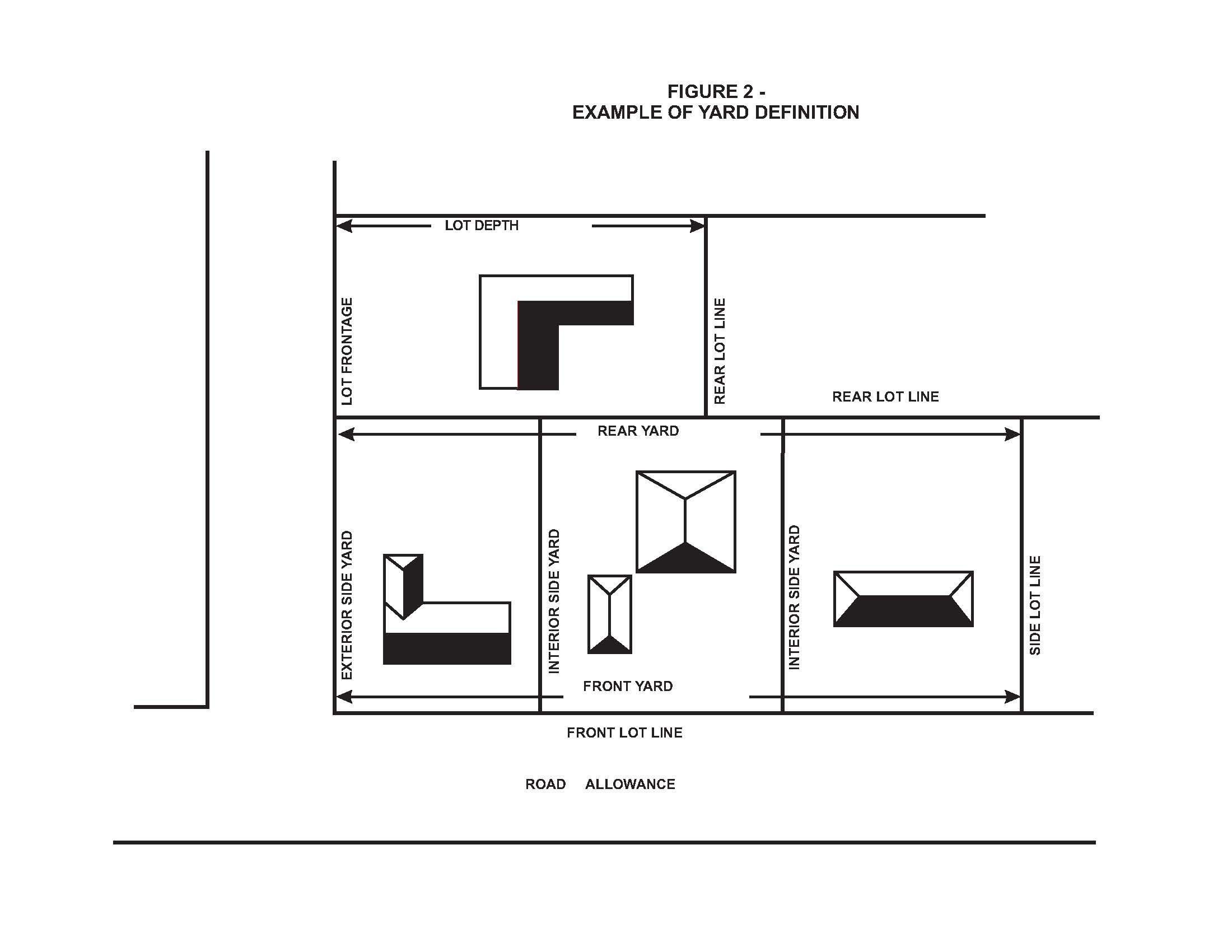
Figures are not an approved portion of the Zoning By-law, these are for guidance and general information only.
Requests for site specific zoning information must be submitted in writing or by email to the Planning Department and include a completed Planning Inquiry online form. Replies to these requests will also be in writing or by email.
Site specific zoning information will not be provided over the telephone.
Requests can be emailed to the Planning Department.
Official Plan
The Township of Minden Hills Official Plan (OP) is a guide for the growth and development within the township. The OP sets out land use designations such as residential, commercial, and industrial. These categories establish permitted uses and other criteria for development proposed within each land use. The vision set out in the Official Plan is implemented through the Zoning By-law.
Amendments to the Official Plan are common. Accordingly, all information provided here should be confirmed with Township Staff.
All planning decisions made by Township Council must conform to the Official Plan.
- Official Plan (text – excluding schedules)
- By-law 24-017 - By-law to adopt Official Plan Amendment No. 17 (OPA 17) of the Township of Minden Hills Official Plan
- Schedule A: Land Use
- Schedule A1: Minden Settlement Area Land Use
- Schedule B: Natural Heritage Features
- Schedule C: Transportation and Utilities
- Schedule C1: Settlement Area of Minden Transportation and Utilities
- Schedule D: Aggregate Resources and Licenced Operations
- Schedule E: Crown Land and Waste Management
- Schedule F: Hazard Lands Overlay
Contact Us
Township of Minden Hills
7 Milne Street
BOX 359
Minden ON K0M 2K0
Phone 705-286-1260
Email
Sign up for Minden Hills News
Stay up to date on the Township's activities, events, programs and operations by subscribing to our News.