Current Development Applications

The following Planning applications for proposed development are being reviewed by the Township Planning Department. Applications are updated as often as possible but may not include all active applications.

Please contact the Planning Department for questions or more information about specific properties or applications.

Zoning By-law Amendment Applications

Property

5373 County Road 121 and adjacent to Howland Lake (see Key Map)

Property Owner

St. Alban’s Boys and Girls Club

Applicant/Agent

Duncan Ross, Duncan Ross Architect

Purpose of Application

The subject property is currently zoned ‘Rural (RU)’ and is located primarily within the Waterfront and Rural designation of the Township’s Official Plan.

The proposed zoning by-law amendment would serve to rezone a portion of the subject lands from ‘Rural (RU)’ to ‘Recreational Commercial Exception Twenty-Three(C3-23)’ zone, to permit a children’s camp with certain site-specific provisions. Portions of the subject lands will also be rezoned to ‘Hazard Lands (HZ)’ to protect the natural heritage features identified in an Environmental Impact Study prepared to support the application.

For more detailed information please see the site plan

Status

The public meeting was held on December 12, 2024. By-law 25-28 was passed by the Council on February 27, 2025. A copy of the Staff Report and By-law and any additional information relating to the Zoning By-law Amendment is available for inspection by contacting the Planning Department.

An appeal to the Ontario Land Tribunal in respect to all or part of this Zoning By-law may be made by filing a notice of appeal with the Clerk of the Corporation of the Township of Minden Hills either via the Ontario Land Tribunal e-file service (first-time users will need to register for a My Ontario Account) at https://olt.gov.on.ca/e-file-service by selecting the Corporation of the Township of Minden Hills as the Approval Authority or at the mailing address provided below no later than 4:30 p.m. on March 27th, 2025. The filing of an appeal after 4:30 p.m., in person or electronically, will be deemed to have been received the next business day. The appeal fee of $1,100.00 can be paid online through e-file or by certified cheque/money order to the Minister of Finance, Province of Ontario. If you wish to appeal to the Ontario Land Tribunal (OLT) or request a fee reduction for an appeal, forms are available from the OLT website at www.olt.gov.on.ca. If the e-file portal is down, you can submit your appeal to Email Amanda Dougherty, Manager of Planning.

Contact

Amanda Dougherty, Manager of Planning

Property

Vacant Land having property roll # 4616-042-000-11200 on Porky’s Road (see Key Map)

Property Owner

1000221785 (Kenneth Peeters)

Purpose of Application

The subject property is currently zoned ‘Rural (RU)’ and is located within the Rural designation of the Township’s Official Plan.

The zoning by-law is submitted to fulfill a condition of consent application H-033-24 and H-034-24 and would serve to rezone the proposed severed parcels from ‘Rural (RU)’ to ‘Rural Residential Exception (RR-E)’ zone, to recognize site-specific provisions. Portions of the subject lands will also be rezoned to ‘Hazard Lands (HZ)’ to protect the natural heritage features identified in a Site Evaluation Report prepared in relation to the consent application.

For more detailed information please see the site plan

Status

The revised By-law was approved by Council at the Regular Meeting on January 9th, 2024. A copy of the By-law can be viewed here (https://mindenhills.civicweb.net/filepro/document/452994/By-law%2025-01%20to%20amend%2006-10%20PLZBA2024062.pdf )

Contact

Amanda Dougherty, Manager of Planning

Property

Part Lot 12, Concession 6, Geographic Township of Lutterworth, 2513 Davis Lake Road (see Key Map).

Property Owner

Estate of Donald Grozelle

Applicant/Agent

Melissa Anderson

Purpose of Application

The subject property is currently zoned ‘General Industrial Exception Five (M1-5)’ and is located within the Rural designation of the Township’s Official Plan.

The current zoning on the property permits the use of the land as a salvage yard. The property is occupied by a dwelling, which is a permitted accessory use to an operating salvage yard.

As a salvage yard no longer operates on the property, the landowners are proposing to use the land for residential uses only. The zoning by-law amendment would serve to rezone the property from ‘General Industrial Exception Five (M1-5)’ zone to ‘Rural Residential (RR)’ zone to permit the principal use of the property for residential uses.

Status

The public meeting was held on January 9, 2025. By-law 25-03 was passed by the Council on February 27, 2025. A copy of the Staff Report and By-law and any additional information relating to the Zoning By-law Amendment is available for inspection by contacting the Planning Department.

An appeal to the Ontario Land Tribunal in respect to all or part of this Zoning By-law may be made by filing a notice of appeal with the Clerk of the Corporation of the Township of Minden Hills either via the Ontario Land Tribunal e-file service (first-time users will need to register for a My Ontario Account) at https://olt.gov.on.ca/e-file-service by selecting the Corporation of the Township of Minden Hills as the Approval Authority or at the mailing address provided below no later than 4:30 p.m. on March 27th, 2025. The filing of an appeal after 4:30 p.m., in person or electronically, will be deemed to have been received the next business day. The appeal fee of $1,100.00 can be paid online through e-file or by certified cheque/money order to the Minister of Finance, Province of Ontario. If you wish to appeal to the Ontario Land Tribunal (OLT) or request a fee reduction for an appeal, forms are available from the OLT website at www.olt.gov.on.ca. If the e-file portal is down, you can submit your appeal to Email: Amanda Dougherty, Manager of Planning.  

Contact

Amanda Dougherty, Manager of Planning

Property

Part Lot 16, Concession 14, Geographic Township of Snowdon, 1237 Ingoldsby Road (see Key Map)

Property Owner

Joseph and Denise Kovac

Applicant/Agent

MHBC, c/o Jamie Robinson, BES, MCIP, RPP

Purpose of Application

The subject property is currently zoned ‘Shoreline Residential (SR)’ and is located within the Waterfront designation of the Township’s Official Plan.

The property owners are proposing to tear down two (2) boathouses in order to construct one (1) new boathouse.

Existing boathouses may be reconstructed on the same footprint, inclusive of size, height and location. The height of the boathouse will remain unchanged. The ground floor area of the boathouse will increase from a combined 88 square metres (947 square feet) to 90.24 square metres (971 square feet). A new location for the boathouse is also proposed and to be setback 5.5 metres (18 feet) from the high water mark of Canning Lake.

The zoning by-law amendment would rezone the property from ‘Shoreline Residential (SR)’ zone to ‘Shoreline Residential Exception (SR-E)’ zone to permit the construction of the boathouse.

In accordance with the Official Plan, reconstruction of the boathouse will be subject to site plan control under Section 41 of the Planning Act.

For more detailed information please see the Site Plan.

Status

The public meeting was held on January 9, 2025. For more information, please refer to the Notice of Public Meeting. A decision on the application has not been made. As revisions are anticipated to the application, a second public meeting will be scheduled once the amended application has been received and reviewed by Staff.

Contact

Amanda Dougherty, Manager of Planning

Property

Part Lot 31, Concession 6, Geographic Township of Minden, municipally known as 1433 Wigamog Road, (see Key Map). 

Property Owner

Gary and Darlene Carlton

Applicant/Agent

Mike Cesario

Purpose of Application

The subject property is currently zoned ‘Rural (RU)’ and is located within the Rural designation of the Township’s Official Plan. The zoning by-law amendment is submitted to fulfill a condition of consent application H-044-24, which would serve to sever a portion of 1433 Wigamog Road for the purpose of a lot addition benefitting 1459 Wigamog Road. The proposed amendment would serve to rezone the severed lands from ‘Rural (RU)’ to ‘Rural Residential (RR)’ to achieve uniform zoning on the resulting enlarged lot.

For more detailed information please see the Site Plan

Status

The public meeting scheduled for February 13, 2025 was rescheduled due to inclement weather. Please refer to the recirculated Public Meeting Notice. A copy of the staff report and draft by-law will be available on the Township website in advance of the meeting.

Contact

Jodi Whalen, Planner

Property

Part Lot 19, Concession 11, Lutterworth, 1094 Forsters Road, Gull Lake (see Key Map)

Property Owner

Nubey and Joe Fierro

Applicant/Agent

Jane Harrison and Steve Mantle

Purpose of Application

The subject property is currently zoned ‘Shoreline Residential (SR)’ and is further designated Waterfront in the Township’s Official Plan.

The subject property is currently developed in the form of a one-storey single detached dwelling, together with accessory structures. The dwelling has a setback of 4.2 metres (13.8 feet) from the shoreline of Gull Lake, together with an attached waterfront deck having a setback of 2.5 metres (8.2 feet) from Gull Lake.

The property owners are proposing to tear down the existing dwelling to be replaced with a one and a half-storey single detached dwelling with a walkout basement, to be built on the same footprint as the existing dwelling. A new attached screened porch is also proposed which will increase the lateral width of the built form by 4.9 metres (16 feet). The zoning by-law amendment would rezone the property from SR zone to ‘Shoreline Residential Exception (SR-E) to permit the construction of the new dwelling, having an increased footprint and height.

Refer to the site plan for more information.

Status

The public meeting is scheduled for March 27th. Please refer to the Public Meeting Notice.

Contact

Amanda Dougherty, Manager of Planning

Property

Part Lot 10, Concession A, Minden, 1940 Scotch Line Road East (see Key Map)

Property Owner

Erika Walter

Applicant/Agent

Melissa Markham

Purpose of Application

The subject property is currently zoned ‘Rural (RU)’ and ‘Hazard Land (HZ)’ and is located within the Minden Settlement Area. The property is further designated Residential with Hazard Lands Overlay in the Township’s Official Plan.

The subject property is currently vacant. The property owners are proposing to construct a single detached dwelling. The proposed location of the dwelling would be partially within the HZ Zone, related to a watercourse and steep slope, and which does not permit residential uses. The zoning by-law amendment would rezone a portion of the property from RU and HZ to ‘Hamlet Residential Exception (HR-E)’ zone to permit the construction of the dwelling. Site specific provisions will ensure any development is setback from the steep slope as required. A portion of the RU zone will be rezoned to HZ to appropriately recognize a steep slope. A portion of the HZ zoned lands will remain unchanged.

Refer to the site plan for more information.

Status

The public meeting is scheduled for March 27th. Please refer to the Public Meeting Notice.

Contact

Amanda Dougherty, Manager of Planning

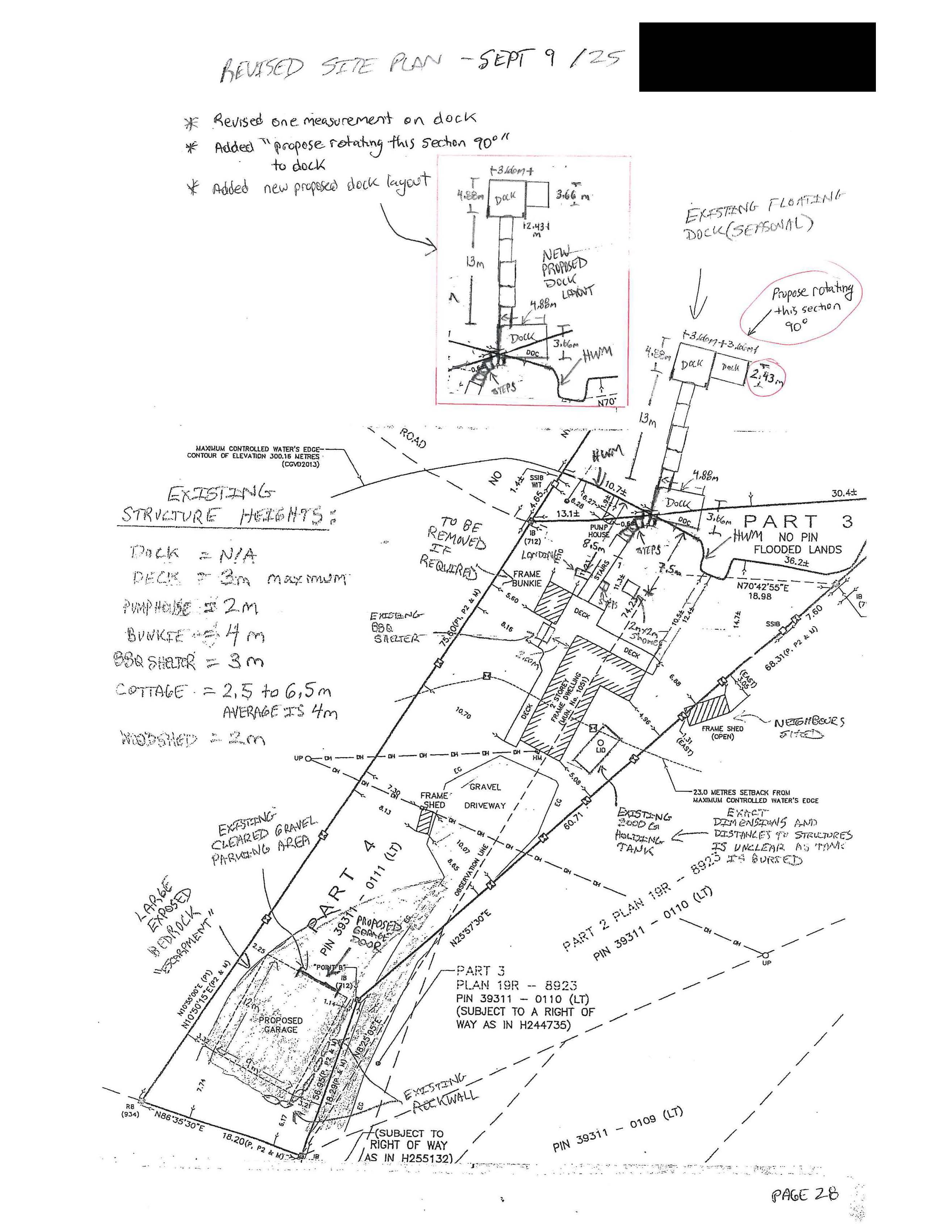
Property

Part Lot 26, Concession 7, Geographic Township of Lutterworth, 1317 Martin’s Trail and adjacent to Black Lake (see Key Map)

Property Owner

Tracy Wilson

Applicant/Agent

Ryan Lloyd, Planscape Inc.

Purpose of Application

The subject property is currently zoned ‘Shoreline Residential (SR)’ and is further designated Waterfront in the Township’s Official Plan.

The subject property is currently developed in the form of two accessory docks. The original one-storey single-family dwelling, sleeping cabin and attached decks have been demolished. The original dwelling had a setback of 10.5 metres (34.4 feet) from the shoreline of Black Lake, together with an attached waterfront deck having a setback of 6.7 metres (21.9 feet) from Black Lake.

The property owners are proposing to build a new slightly larger one-storey single-family dwelling with a walkout basement and attached deck. A new covered porch is also proposed. The proposed dwelling will maintain the same setbacks to Black Lake as the original dwelling, whereas the proposed attached deck will have in increased setback. The zoning by-law amendment would rezone the property from SR zone to ‘Shoreline Residential Exception (SR-E) to permit the construction of the new dwelling, having an increased footprint and height.

Refer to the site plan for more information.

Status

The public meeting is rescheduled for May 13, 2025. Please refer to the Public Meeting Notice.

Contact

Amanda Dougherty, Manager of Planning

Property

Part Lot 2, Concession 1, Geographic Township of Anson, 1028 Foxtail Lane (see Key Map)

Property Owner

2640599 Ontario Inc

Applicant/Agent

Jeff Howe

Purpose of Application

The subject property is currently zoned ‘Shoreline Residential (SR)’ and is further designated Waterfront in the Township’s Official Plan.

The subject property is currently developed in the form of a single-family dwelling, detached garage and one accessory building. The proposed zoning by-law amendment would rezone the property from SR zone to ‘Shoreline Residential Exception (SR-E) to permit the use of the accessory building as a home occupation with a reduced side yard and rear yard setback of 2.14 metres (7.0 feet) and 2.74 metres (8.99 feet) respectively.

Refer to the site plan for more information.

Status

The public meeting is rescheduled for May 13, 2025. Please refer to the Public Meeting Notice.

Contact

Amanda Dougherty, Manager of Planning

Property

Part Lot 26, Concession 7, Geographic Township of Lutterworth, 1315 Martin’s Trail and adjacent to Black Lake (see Key Map)

Property Owner

Richard and Patricia Binnendyk

Applicant/Agent

Eneri Taul

Purpose of Application

The subject property is currently zoned ‘Shoreline Residential (SR)’ and is further designated Rural in the Township’s Official Plan.

The subject property is currently developed in the form of a one-storey single-detached dwelling with attached deck and gazebo, together with accessory structures. The existing dwelling has a setback of 10.6 metres (34.8 feet) from the shoreline of Black Lake, and the attached waterfront deck has a setback of 3.2 metres (10.5 feet) from Black Lake. The property owners are proposing to build a new larger two-storey single-detached dwelling along with replacing the existing attached deck. A new covered porch is also proposed. A portion of the existing waterfront deck and the existing gazebo is to be removed and replaced with a smaller footprint deck. The proposed dwelling and attached deck will maintain the same setbacks to Black Lake as the existing development.

The zoning by-law amendment would rezone the property from ‘SR’ zone to ‘Shoreline Residential Exception (SR-E)’ to permit the construction of the new dwelling, having an increased footprint and height where development standards of the Zoning By-law are otherwise non-complying. Refer to the site plan (page 1) site plan page 2 for more information.

Status

The public meeting is scheduled for May 13, 2025. Please refer to the Public Meeting Notice.

Contact

Amanda Dougherty, Manager of Planning

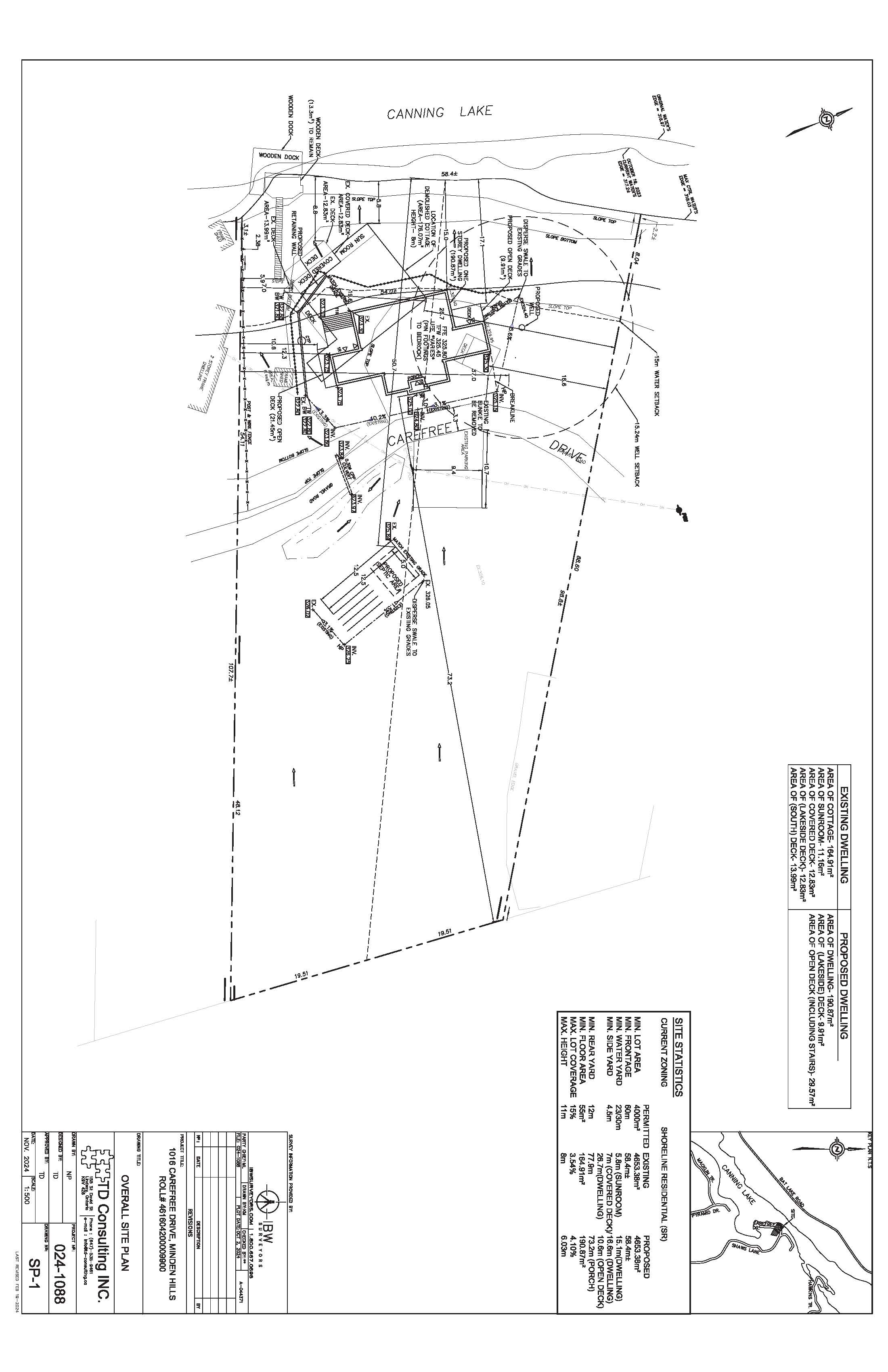
Property

Part Lot 11, Concession 14, Geographic Township of Snowdon, 1016 Carefree Lane (see Key Map)

Property Owner

Heather Haynes and Kevin Thistle

Applicant/Agent

TD Consulting Inc.

Purpose of Application

The subject property is currently zoned ‘Shoreline Residential (SR)’ and is further designated Waterfront in the Township’s Official Plan.

The subject property was originally developed in the form of a one-storey single-detached dwelling with attached covered deck, and sunroom which was destroyed by fire. The property also includes one sleeping cabin with attached deck. The original dwelling had a setback of 5.8 metres (19 feet) from the shoreline of Canning Lake, together with an attached waterfront deck having a setback of 8.8 metres (28.9 feet) from Canning Lake. The property owners are proposing to build a new larger one-storey single-detached dwelling with an increased setback to Canning Lake of 15 metres (49.2 feet) along with two attached open decks.

The zoning by-law amendment would rezone the property from SR zone to ‘Shoreline Residential Exception (SR-E)’ to permit the construction of the new dwelling, having an increased footprint and lateral width within the water yard setback. Refer to the site plan page 1 and site plan page 2 for more information.

Status

The public meeting is scheduled for May 13, 2025. Please refer to the Public Meeting Notice.

Contact

Amanda Dougherty, Manager of Planning

Property

Part Lot 32, Concession 7, Geographic Township of Minden, Property with Roll Number 4616-031-000-73700 (see Key Map)

Property Owner

Giovanni Calvieri

Applicant/Agent

TD Consulting Inc.

Purpose of Application

The subject property is currently zoned ‘Rural (RU)’ and is located within the Rural designation of the Township’s Official Plan.

The zoning by-law amendment is submitted to fulfill conditions of consent applications H-046-24 and H-047-24 and would serve to rezone portions of the property to ‘Hazard Lands (HZ)’ and incorporate site-specific provisions to protect the natural heritage features identified in an Environmental Impact Study prepared in relation to the consent applications. Refer to the site plan for more information. 

Status

The public meeting is scheduled for May 13, 2025. Please refer to the Public Meeting Notice.

Contact

Amanda Dougherty, Manager of Planning

Property

Part Lot 29, Concessions 1 and 2, Geographic Township of Minden, Property with Roll Number 4616-030-000-40400 (see Key Map)

Property Owner

Ken and Jacquie Barry

Applicant/Agent

Ken and Jacquie Barry

Purpose of Application

The subject property is currently zoned ‘Rural (RU)’ and ‘Hazard Lands (HZ)’ and is located within the Rural and Environmental Protection designations of the Township’s Official Plan.

The zoning by-law is submitted to fulfill conditions of consent applications H-052-24 and H-053-24 and would serve to rezone portions of the property to ‘Hazard Lands (HZ)’ and incorporate site-specific provisions to protect the natural heritage features identified in an Environmental Impact Study prepared in relation to the consent applications. Refer to the constraint map plan for more information.

Status

The public meeting is scheduled for May 13,2025. Please refer to the Public Meeting Notice.

Contact

Amanda Dougherty, Manager of Planning

Property

Part Lot 26, Concession 7, Geographic Township of Minden, 1033 Ray’s Lane (see Key Map)

Property Owner

Steve Gillingham

Applicant/Agent

Lorraine Howell

Purpose of Application

The subject property is currently zoned ‘Shoreline Residential (SR)’ and is further designated Waterfront in the Township’s Official Plan.

The subject property is currently developed in the form of a single detached cottage and accessory structures. The cottage has a setback of 22.4 metres (73.4 feet) from the shoreline of Kashagawigamog Lake, together with multiple attached waterfront decks having a high-water mark setback of 14 metres (46 feet). The cottage further has a reduced northerly side yard setback of 1.3 metres (4.27 feet). The property owners are proposing to build a new dwelling on an expanded footprint, together with increased height, being two-storeys in addition to a walkout basement and attached deck. The proposed dwelling will improve and otherwise comply with required setback (23 metres or 75 feet) to the shoreline of Kashagawigamog Lake. The dwelling will improve the north side yard setback to 2 metres (6.56 feet), which will serve to slightly reduce the south side yard setback to 4.08 metres (13.4 feet).

The zoning by-law amendment would rezone the property from SR zone to ‘Shoreline Residential Exception (SR-E)’ to permit the construction of the new dwelling, having an increased footprint and height where setback requirements cannot be otherwise met. Refer to the site plan page 1 and site plan page 2 for more information

Status

The public meeting is scheduled for May 13,2025. Please refer to the Public Meeting Notice.

Contact

Amanda Dougherty, Manager of Planning

Property

1473 Bat Lake Road (see key map

Property Owner

Alan Cook and Diane Halfpenny 

Purpose of Application

The subject property is currently zoned ‘Rural (RU)’ and ‘Hazard Lands (HZ)’ and is located within the Waterfront, Rural and Environmental Protection designations of the Township’s Official Plan. The zoning by-law is submitted to fulfill a condition of consent application H-051-24 and would serve to rezone portions of the property to ‘Hazard Lands (HZ)’ and incorporate site-specific provisions to protect the natural heritage features identified in an Environmental Impact Study prepared in relation to the consent applications. As per the notice of decision, the zoning by-law amendment only applies to the severed lot. 

Status

A public meeting has been scheduled for June 12, 2025 - Public Meeting Notice. Please see the site map identifying the boundaries of the new lot. Refer to the consent sketch for more information. 

Contact

Amanda Dougherty, Manager of Planning 

Property

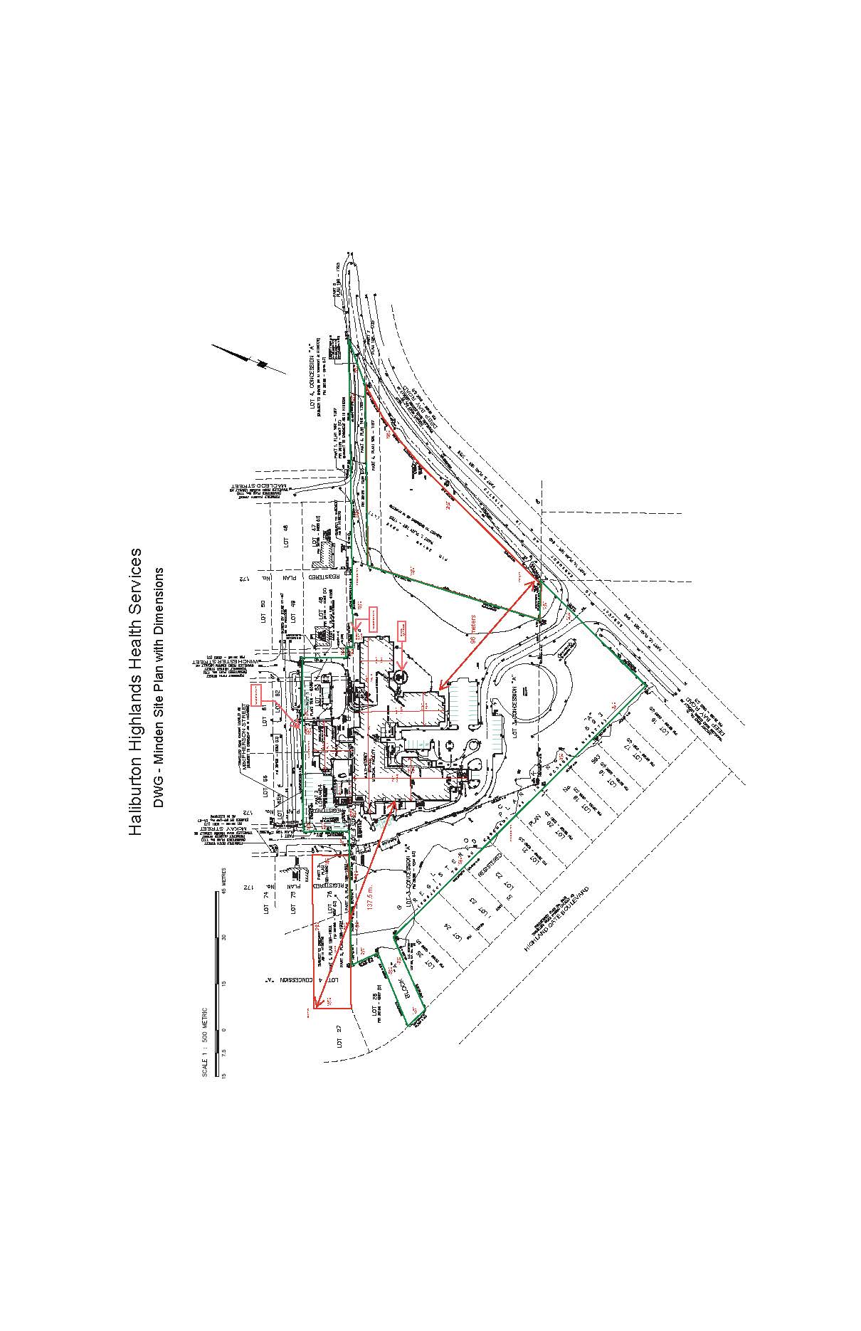
Part Lots 3 & 4, Concession A, Geographic Township of Anson, being 4575 Deep Bay Road (see Key Map)

Property Owner

Haliburton Highlands Health Services (HHHS) Corporation

Applicant/Agent

HHHS

Purpose of Application

The subject properties are currently zoned ‘Community Facility (CF)’ and ‘Residential Type 1 (R1)’ and are located within the Residential designation of the Township’s Official Plan.

The proposed amendment would serve to rezone the portions of the subject lands zoned ‘Residential Type 1 (R1)’ to ‘Community Facility (CF)’ zone to create a uniform zoning across the properties to assist with master planning of health care services at the site and to plan for improved parking. The lands will be zoned to ‘Community Facility Exception (CF-E)’ zone to recognize existing reduced northern side yard setbacks. There is no development proposed as part of the zoning by-law amendment.    The subject property is currently zoned ‘Shoreline Residential (SR)’ and is further designated Rural in the Township’s Official Plan. Refer to the site plan for more information.

Status

The public meeting is scheduled for July 31, 2025. Please refer to the Public Meeting Notice.

Contact

Amanda Dougherty, Manager of Planning

Property

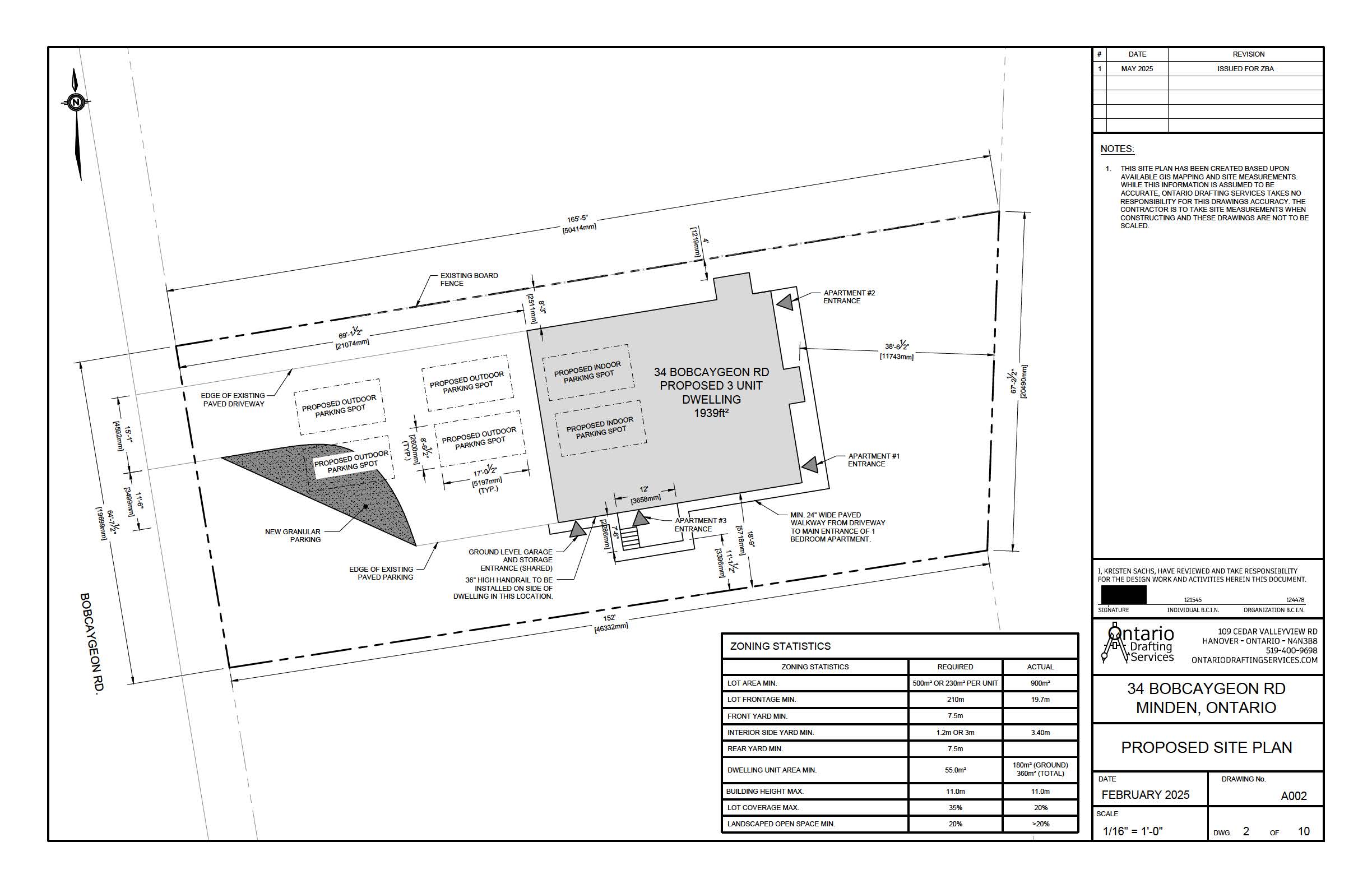
Part Lot 2, Concession A, Geographic Township of Minden, being 34 Bobcaygeon Road (see Key Map)

Property Owner

Thomas Huxtable and Kathryn Sharp

Applicant/Agent

Thomas Huxtable

Purpose of Application

The subject property is currently zoned ‘Village Commercial (C4)’ and is located within the Downtown Transition designation of the Township’s Official Plan.

The proposed amendment would serve to rezone the property from ‘Village Commercial (C4)’ Zone to a site specific ‘Residential Type Two Exception’ Zone in order to permit the redevelopment of the existing single detached dwelling into a three (3) unit multiple dwelling and to allow for a reduced minimum lot frontage, minimum interior side yard setback and minimum dwelling unit area required for a multiple dwelling. Refer to the site plan for more information.

Status

The public meeting is scheduled for July 31, 2025. Please refer to the Public Meeting Notice.

Contact

Amanda Dougherty, Manager of Planning

Property

Part Lot 28, Concession 5, Geographic Township of Snowdon, being a lot at 1014 Bumblebee Lane (see Key Map)

Property Owner

Adam Ezer

Applicant/Agent

Ezer Professional Corp.

Purpose of Application

The subject property is currently zoned ‘Rural (RU)’ and is located within the Waterfront designation of the Township’s Official Plan. The proposed amendment would serve to rezone the property from ‘Rural (RU)’ Zone to a site specific ‘Shoreline Residential Exception (SR-E)’ Zone to permit the increased size of a dwelling which is located within 15 metres of the high-water mark of the adjacent river. The application would serve to extend the existing ground level decks 10.35 square metres (111.41 square feet) along the west side of the dwelling and to construct a second storey addition with 20.49 square metre (220.55 square foot) wraparound upper level decks within the cabin’s existing/proposed building footprint. The height is also proposed to increase from 5.2 metres (17.06 feet) to 7.52 metres (24.67 feet). Refer to the site plan for more information.

Status

The public meeting is scheduled for August 28, 2025. Please refer to the Public Meeting Notice.

Contact

Amanda Dougherty, Manager of Planning

Property

Part of Lot 11, Concession 14, Geographic Township of Snowdon, being 1045 Carefree Drive (see Key Map)

Property Owner

Charles Davey and Jennifer Wyn Houlding

Applicant/Agent

Melissa Markham Planning

Purpose of Application

The subject property is zoned ‘Shoreline Residential (SR)’ and is located within the Waterfront designation of the Township’s Official Plan. The subject property is currently developed in the form of a single detached dwelling and accessory structures. The application would permit an 84.7 square metre (912 square foot) two-storey addition to the existing non-complying dwelling which is located within 15 metres of the high-water mark of Canning Lake. The property owners are also proposing to demolish the existing 37.5 square metre (404 square foot) non-complying garage and rebuild a 67 metre (720 square foot) new garage, in which will maintain a 17.8 metre setback to the high-water mark of Canning Lake.

The proposed amendment would serve to rezone the property from ‘Shoreline Residential (SR)’ Zone to a site specific ‘Shoreline Residential Exception (SR-E)’ Zone to permit the increased size of an existing non-complying dwelling and the demolition and reconstruction of an existing non-complying garage. Refer to the site plan for more information.

Status

The public meeting is rescheduled for September 25, 2025. Please refer to the Public Meeting Notice.

Contact

Amanda Dougherty, Manager of Planning

Property

Part of Lot 12, Concession 1, Geographic Township of Anson, being 1051 Loggers Crossing Lane, Bob Lake (see Key Map)

Property Owner

Libby and Glenn Marfleet

Applicant/Agent

Total Site Services

Purpose of Application

The subject property is zoned ‘Shoreline Residential (SR)’ and is located within the Waterfront designation of the Township’s Official Plan. The property owners are proposing to construct a one-storey detached garage with carport. Construction of the garage would result in increased lot coverages which would exceed the maximum permitted, as well as reduce an interior side yard setback. The Township Zoning By-law 06-10 permits a maximum total lot coverage of 15% and maximum accessory lot coverage of 5%. The minimum interior side yard setback for a one-storey garage is 2 metres.

The proposed amendment would serve to rezone the property from ‘Shoreline Residential (SR)’ to ‘Shoreline Residential Exception (SR-E)’ to permit an increased total lot coverage of 16% and total accessory lot coverage of 8%, together with an interior side yard setback of 1 metre for a detached garage and carport. The amendment would also serve to recognize the lateral width of existing shoreline structures.

Please refer to the site plan for more information.

Status

The public meeting is scheduled for October 9, 2025. Please refer to the Public Meeting Notice.

Contact

Amanda Dougherty, Manager of Planning

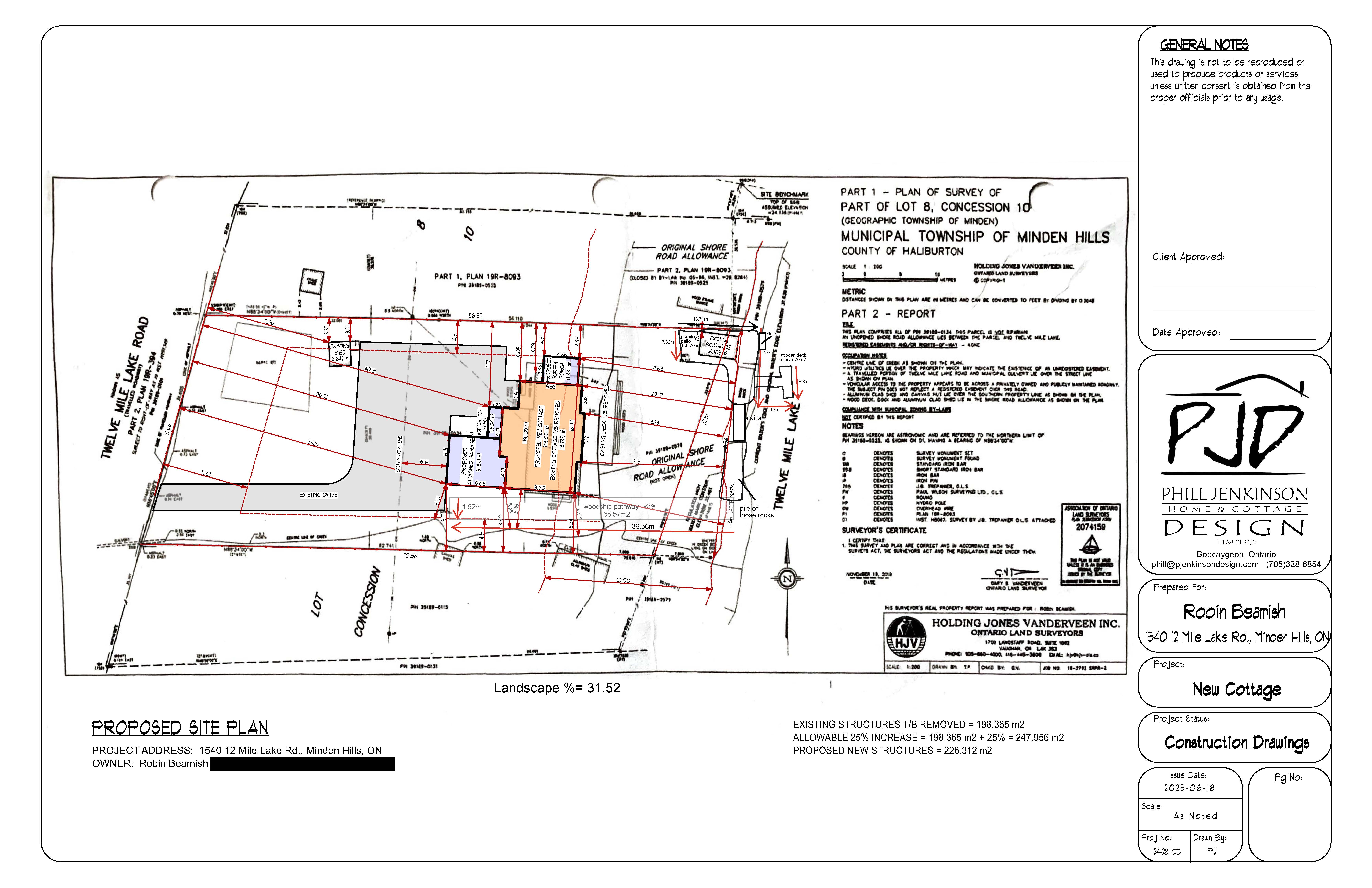
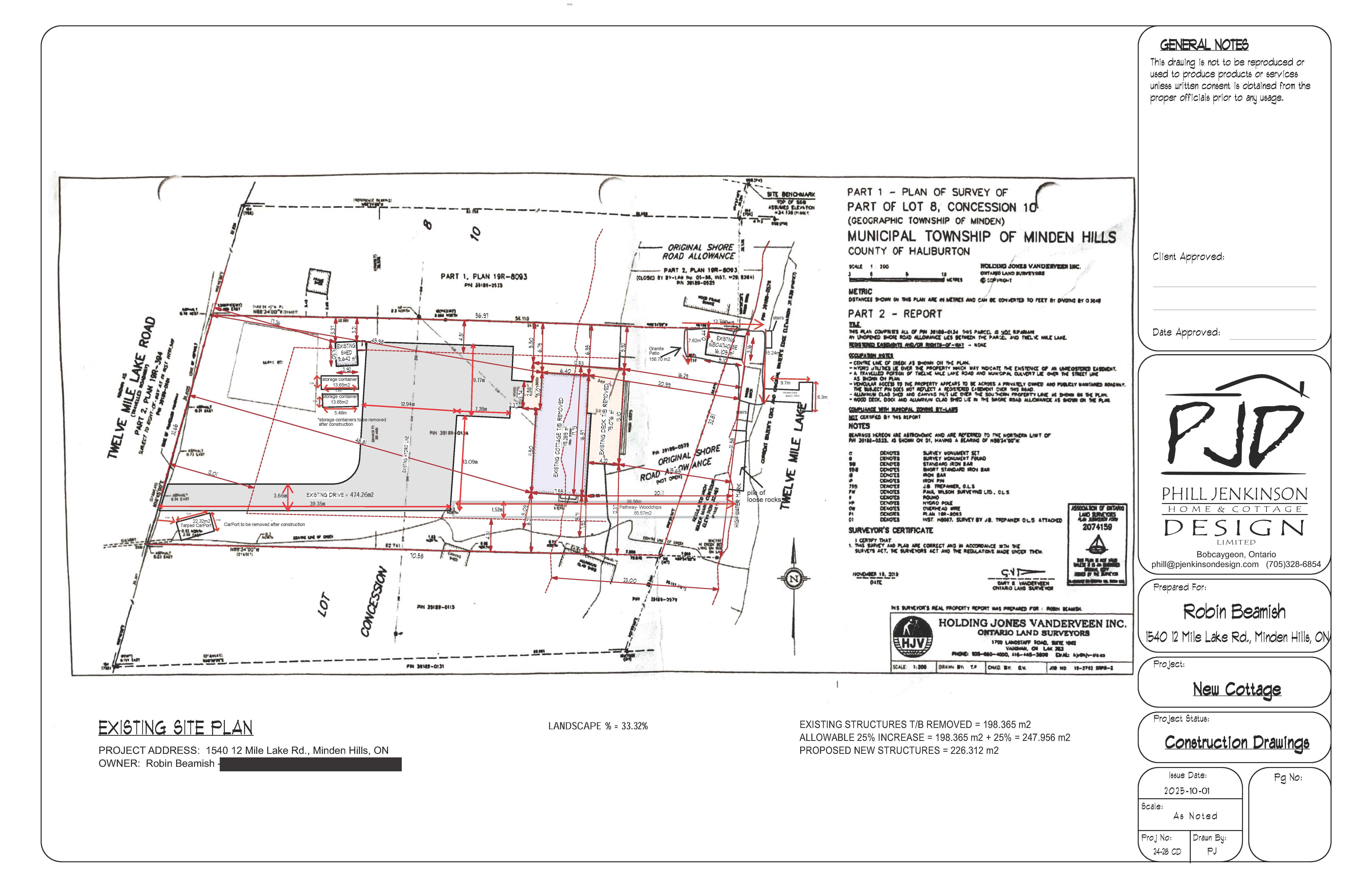
Property

Part Lot 8, Concession 10, Geographic Township of Minden, municipally known as 1540 Twelve Mile Lake Road, (see Key Map).

Property Owner

Barbara and Carly Beamish

Applicant/Agent

Carly Beamish

Purpose of Application

The subject property is zoned ‘Shoreline Residential (SR)’ and is located within the Waterfront designation of the Township’s Official Plan.

The subject property is currently developed in the form of a one and a half storey single-detached dwelling with attached deck, together with accessory structures. The existing dwelling has a setback of 19.25 metres (63.16 feet) from the shoreline of Twelve Mile Lake, and the attached waterfront deck has a setback of 15.65 metres (51.35 feet) from Twelve Mile Lake.

The property owners are proposing to build a new larger two-storey single-detached dwelling with a new attached garage at the rear of the dwelling. A new screened porch is also proposed having a setback of 21.69 (71.16 feet) from Twelve Mile Lake. The existing waterfront deck is to be removed. The proposed dwelling will maintain the same setbacks to Twelve Mile Lake as the existing dwelling. The zoning by-law amendment would rezone the property from ‘SR’ zone to ‘Shoreline Residential Exception (SR-E)’ to permit the construction of the new dwelling, having an increased footprint and height where development standards of the Zoning By-law are otherwise non-complying. For more detailed information, please see the site plan page 1 and site plan page 2.

Status

The application is scheduled for public meeting on November 13, 2025. Please refer to the Public Meeting Notice.

Contact

Jodi Whalen, Planner

Property

Part Lot 22, Concession A, Geographic Township of Minden, having roll number 4616-033-00055210, (see Key Map).

Property Owner

Ian and Tereasa Dixon

Applicant/Agent

Ian and Tereasa Dixon

Purpose of Application

The subject property is zoned ‘Rural (RU)’ zone and ‘Hazard Land (HZ)’ zone and is located within the Rural designation of the Township’s Official Plan. An Environmental Impact Study (EIS) was prepared in relation to the application and identified both wetland and watercourse features. In recognition of the findings of the EIS the zoning will be amended to appropriately recognize wetland and watercourse features and the associated vegetated buffer as ‘Hazard Land (HZ)’; and to further rezone any lands not presenting with natural heritage features to ‘Rural-Exception (RU-E)’ zone. The RU-E zone will recognize site-specific provisions and further permit the development of a single detached dwelling. For more information please see the site plan:

Status

The application is scheduled for public meeting on December 11, 2025. Please refer to the Public Meeting Notice.

Contact

Jodi Whalen, Planner

Property

Part Lot 3, Concession A, Geographic Township of Anson, municipally known as 101 Bobcaygeon Road (see Key Map).

Property Owner

Whitney Plastics Limited c/o Dale Schumacher

Applicant/Agent

Whitney Plastics Limited c/o Dale Schumacher

Purpose of Application

The subject property is currently zoned ‘Village Commercial (C4)’ and is located within the Downtown designation of the Township’s Official Plan Schedule ‘A-1’. The proposed amendment would serve to rezone the property from ‘Village Commercial (C4)’ Zone to a site specific ‘‘Village Commercial Exception (C4-E)’ Zone in order to permit  the conversion of a commercial unit, having no direct street frontage, into a residential dwelling unit. Please refer to the plans below for more information. 

Status

The application is scheduled for public meeting on March 12, 2026. Please refer to the Public Meeting Notice.

Contact

Jodi Whalen, Planner

Property

Part Lot 22, Concession 13, Geographic Township of Snowdon, municipally known as 1498 Ritchie Falls Road (see Key Map).

Property Owner

Steve Langdon and Abida Jamal

Applicant/Agent

Steve Brand

Purpose of Application

The subject property is currently zoned ‘Rural (RU)’ and ‘Hazard Lands (HZ)’ and is located within the Rural and Environmental Protection designation of the Township’s Official Plan. Application PLZBA2026008 is submitted to fulfill a condition of consent application H-018-25, which will facilitate the creation of a new residential building lot. An Environmental Impact Study (EIS) was prepared in relation to the consent application and identified both wetland and watercourse features. In recognition of the findings of the EIS, the zoning by-law amendment will serve to rezone portions of the property that are not impacted by existing natural features from ‘Hazard Land (HZ)’ zone to ‘Rural (RU)’ zone. The amendment will also serve to appropriately rezone any wetland or watercourse feature and the associated vegetated buffer as ‘Hazard Land (HZ)’ and further to rezone the balance of the severed parcel from ‘Rural (RU)’ to ‘Rural Residential Exception (RR-E)’ zone, to recognize site-specific provisions.  

Status

The application is scheduled for public meeting on March 12, 2026. Please refer to the Public Meeting Notice.

Contact

Jodi Whalen, Planner

Minor Variance Applications

Property

Part Lot 12, Concession 14 – Snowdon, 1345 Shaw’s Lane (Canning Lake) see Key Map

Property Owner

Jacqueline Hill and Jason Schwarz

Purpose of Application

The purpose of the application is to provide relief from the Township of Minden Hills Zoning By-law 06-10, as amended, to permit the development of a 22.30 sq.m (240 sq.ft) addition to the southeast side of the existing cottage. 

The effect of the application would be to permit an increase in the size of a building located in part within 15 m (49.3 ft) of the high-water mark, where an increase in size or height of a building or structure is otherwise not permitted.

For more detailed information, please see the site plan

Status

The public hearing was held on December 9, 2024. The Committee of Adjustment approved the requested variance as outlined above.

Contact

Jodi Whalen, Planner

Property

1378 Bobcaygeon Road (See Key Map)

Property Owner

Jean-Marie Barker and David Archer

Purpose of Application

The purpose of the application is to provide relief from the Township of Minden Hills Zoning By-law 06-10, as amended, to permit the redevelopment and enlargement of the dwelling and to construct a new two-storey addition with a side porch.

The effect of the application would be to permit an increase of the gross floor area of the building beyond the permitted 25% for non-complying buildings or structures.

For more detailed information, please see the site plan

Status

The public hearing was held on December 9, 2024. The Committee of Adjustment approved the requested variance as outlined above.

Contact

Jodi Whalen, Planner

Property

Part Lot 8, Concession 10, Geographic Township of Minden, municipally known as 1020 Toboggan Hill Trail, (see Key Map).

Property Owner

Tom and Kathy Salisbury

Applicant/Agent

Greg McImoyle

Purpose of Application

The purpose of the application is to provide relief from the Township of Minden Hills Zoning By-law 06-10, as amended, to facilitate the construction of a new one storey garage. The application will have the effect of providing relief from Section 4.35 to permit a reduced setback from a building to a private right of way of 0.15m (0.5 feet) whereas a setback of 3m (10 feet) is required.

For more detailed information, please see the site plan.

Status

The public meeting was held on February 24, 2025. The Committee of Adjustment approved the requested variance as outlined above. For a copy of the Notice of Decision please contact the undersigned.

Contact

Jodi Whalen, Planner

Property

Part Lot 8, Concession 2, Geographic Township of Lutterworth, having roll number 4616-051-000-19000, (see Key Map).

Property Owner

Joan and Keith Pelley

Applicant/Agent

Darryl Galea

Purpose of Application

The purpose of the application is to provide relief from the Township of Minden Hills Zoning By-law 06-10, as amended, to facilitate the construction of a new accessory building. The application will have the effect of providing relief from Section 4.1.6 to permit an increased height of an accessory building within 40m (131.2 feet) of the high-water mark to be a maximum of 5.95m (19.5 feet), whereas a maximum height of 3.5m (11.5 feet) is required.

For more detailed information, please see the site plan.

Status

The public meeting was held on February 24, 2025. The Committee of Adjustment approved the requested variance as outlined above. For a copy of the Notice of Decision please contact the undersigned.

Contact

Jodi Whalen, Planner

Property

Part of Lots 14 & 15, Concession 11, Geographic Township of Lutterworth, and municipally known as 1039 Little Bob Lake Road (see Key Map).

Property Owner

John and Lisa Thompson

Applicant/Agent

John and Lisa Thompson

Purpose of Application

The purpose of the application is to provide relief from the Township of Minden Hills Zoning By-law 06-10, as amended, to facilitate the construction of a new sleeping cabin. The application will have the effect of providing relief from Section 4.1.13 to permit the construction of the sleeping cabin in the front yard, being closer to the public road than the main dwelling. For more detailed information, please see the site plan.

Status

The application is scheduled for public meeting on August 25, 2025. Please refer to the Public Meeting Notice.

Contact

Jodi Whalen, Planner

Property

Part of Lot 24 Concession 9, Geographic Township of Minden, municipally known as 2216 Blairhampton Road (see Key Map).

Property Owner

Angus Baldocchi

Applicant/Agent

Ecovue Consulting Services

Purpose of Application

The purpose of the application is to provide relief from the Township of Minden Hills Zoning By-law 06-10, as amended, to permit the construction of a new single storey detached garage having a ground floor area of 33.67 square metres (362.4 square feet), to be located in the front yard, being closer to the public road than the main dwelling. The application will have the effect of providing relief from Sections 4.1.3 a) and 5.2, to permit a front yard setback of 5.8 metres, whereas a setback of 15 metres (49.2 feet) is required. For more detailed information, please see the site plan.

Status

The application is scheduled for public meeting on August 25, 2025. Please refer to the Public Meeting Notice.

Contact

Jodi Whalen, Planner

Property

Part Lot 24, Concession 5, Geographic Township of Lutterworth, municipally known as 1192 Tundra Trail, (see Key Map).

Property Owner

Fay Splett and John Novelli

Applicant/Agent

Fay Splett and John Novelli

Purpose of Application

The purpose of the application is to provide relief from the Township of Minden Hills Zoning By-law 06-10, as amended, to permit a two-storey garage with sleeping cabin above.  The application will have the effect of providing relief from Section 4.1.6, to permit an accessory building with a mean height of 6.4 metres within 40 metres of the high water mark. For more detailed information, please see the site plan.

Status

The application is scheduled for public meeting on October 27, 2025. Please refer to the Public Meeting Notice.

Contact

Jodi Whalen, Planner

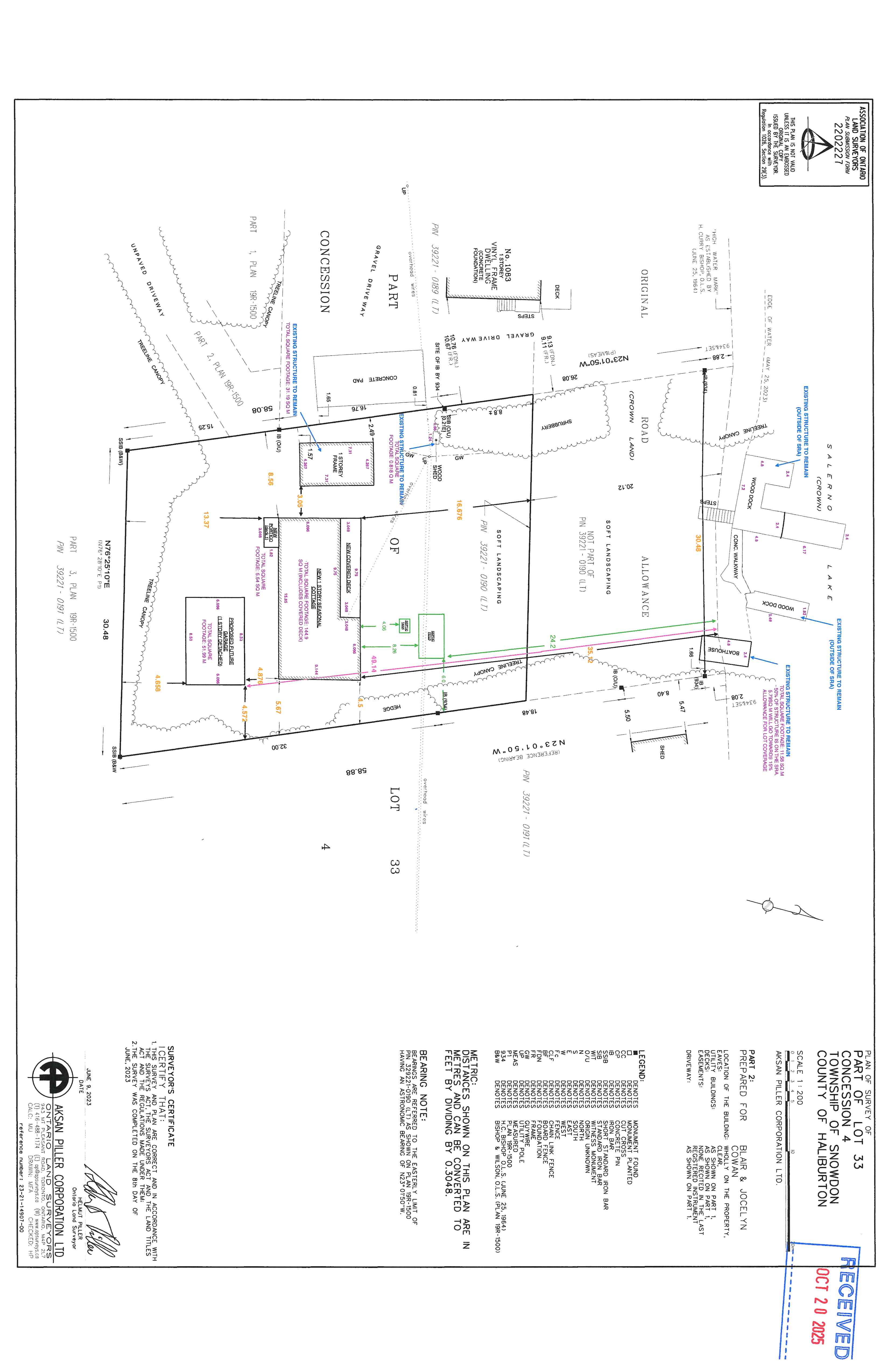
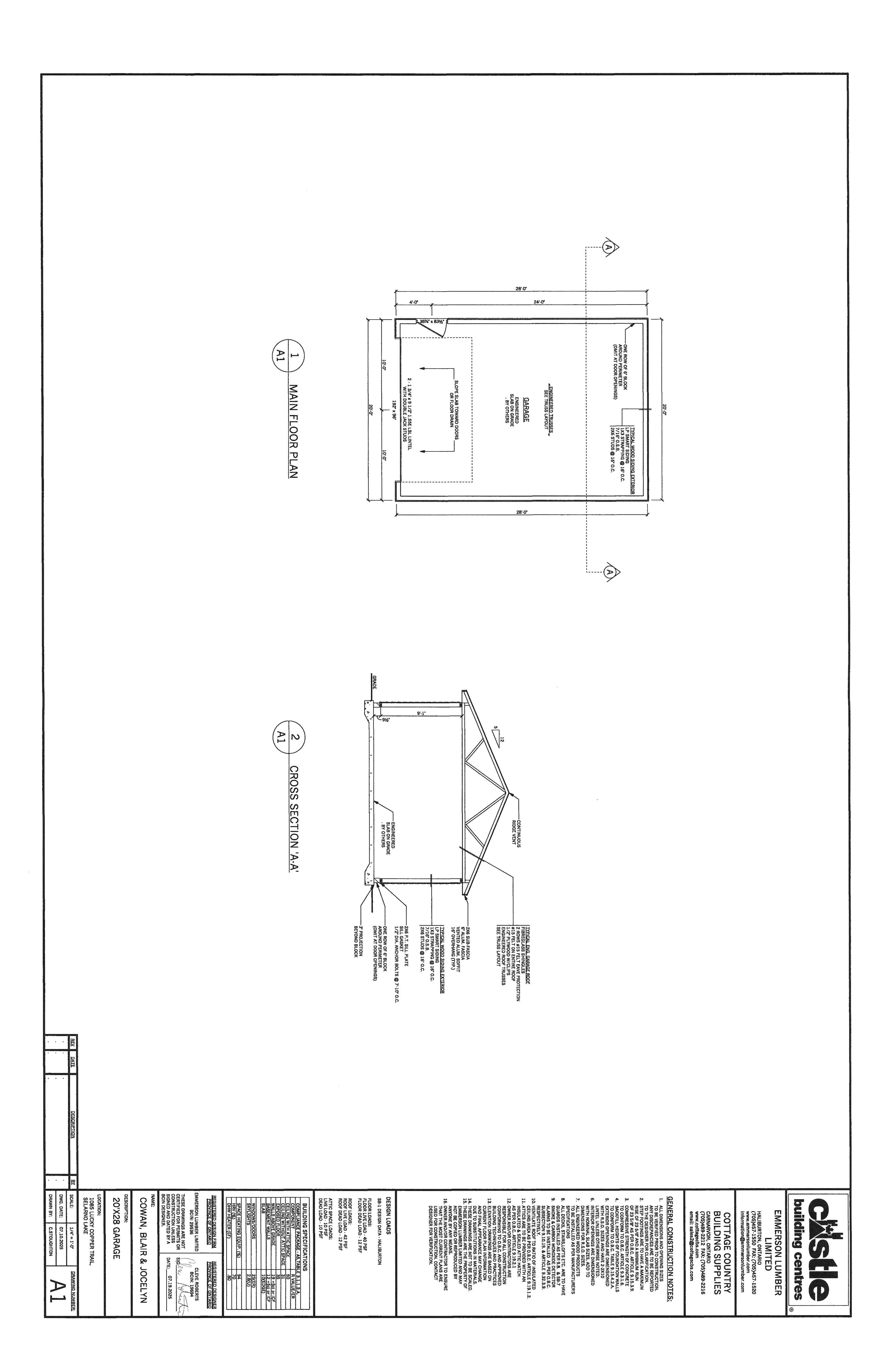
Property

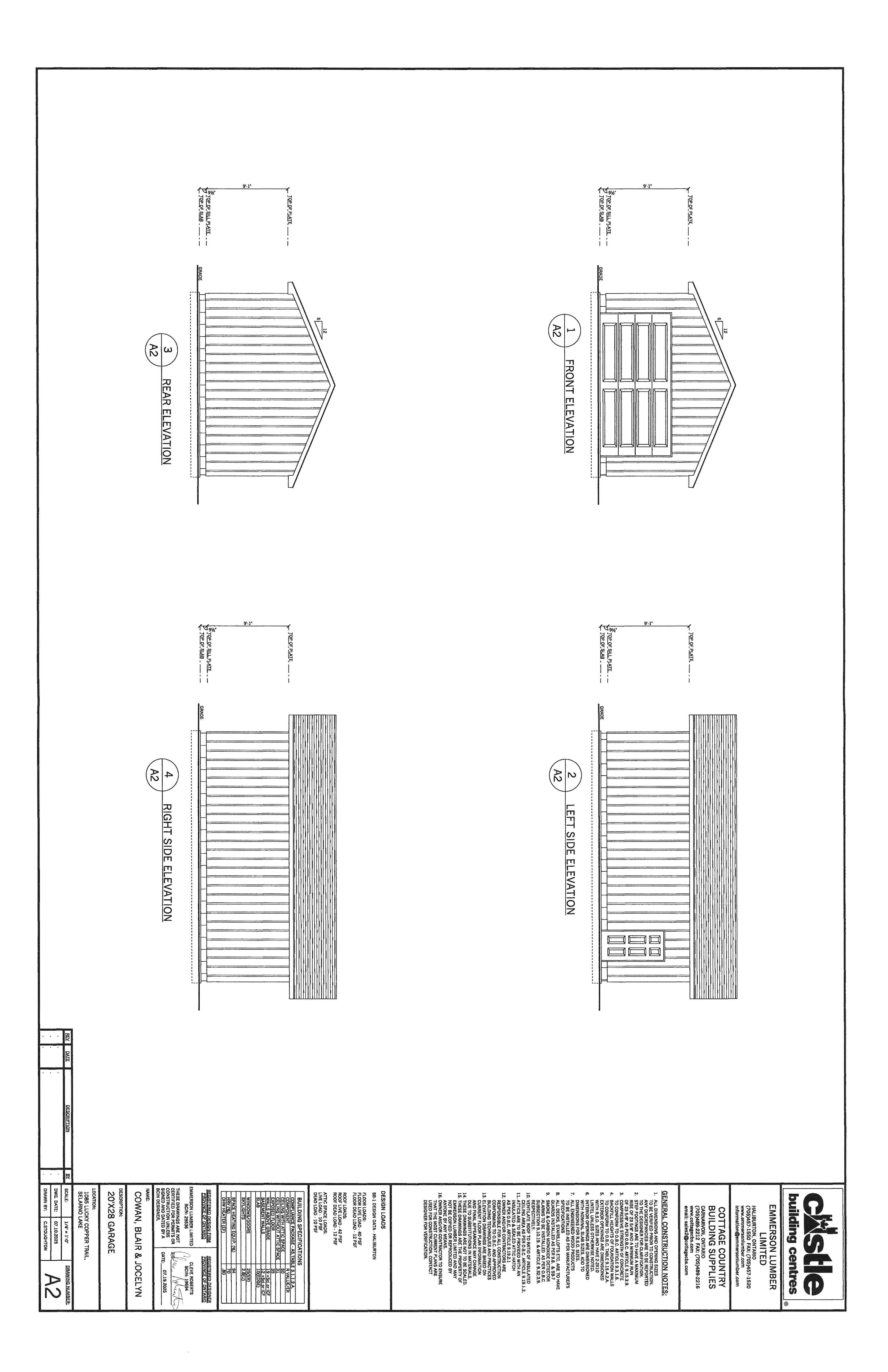
Part of Lot 33 Concession 4, Geographic Township of Snowdon, municipally known as 1085 Lucky Copper Trail, (see Key Map).

Property Owner

Blair and Jocelyn Cowan

Applicant/Agent

Andria Cowan-Moylneaux

Purpose of Application

The purpose of the application is to provide relief from the Township of Minden Hills Zoning By-law 06-10, as amended, to permit the construction of a two-storey garage having a ground floor area of 77.3 square metres (832 square feet) with upper floor storage. The application will have the effect of providing relief from Section 5.2 and 4.9.1 of the By-law, to permit a rear yard setback of 10.05 metres (32.9 feet), whereas a minimum of 12 metres (39.4 feet) is required. For more information, please see the site plan (site plan: page 1 and Page 2).

Status

The application is scheduled for public meeting on November 24, 2025.  

Contact

Jodi Whalen, Planner

Property

Part of Lot 33 Concession 4, Geographic Township of Snowdon, municipally known as 1085 Lucky Copper Trail, (see Key Map).

Property Owner

Blair and Jocelyn Cowan

Applicant/Agent

Andria Cowan-Moylneaux

Purpose of Application

The purpose of the application is to provide relief from the Township of Minden Hills Zoning By-law 06-10, as amended, to permit the construction of a one storey garage. The application will have the effect of providing relief from Section 5.2 and 4.1.8 of the By-law, to permit a total lot coverage of 19.6% and an accessory building/structure coverage of 6.8%, whereas the maximum total lot coverage and total accessory building/structure coverage is 15% and 5%, respectively. An application to purchase the shore road allowance (SRA) has been submitted and is being processed concurrently. The additional land acquired through the purchase of the SRA is expected to bring the development into compliance with the maximum lot coverages, and therefore the relief required is proposed to be temporary. For more information, please see the site plan (site plan: page 1, page 2, page 3, and page 4).

Status

The application is scheduled for public meeting on November 24, 2025.  

Contact

Jodi Whalen, Planner

Property

Part of Lot 8 Concession 1, Geographic Township of Anson, municipally known as 1169 Trellis Trail, (see Key Map).

Property Owner

David Roberts and Pamela England

Applicant/Agent

David Roberts

Purpose of Application

The purpose of the application is to provide relief from the Township of Minden Hills Zoning By-law 06-10, as amended, to permit the construction of a two storey garage with upper floor storage. The application will have the effect of providing relief from Section 4.1.6, to permit an accessory building with a mean height of 6 metres (21 feet) within 40 metres (131.2 feet) of the highwater mark, whereas a mean height of 3.5 metres (11.5 feet) is permitted. For more information, please see the site plan.

Status

The application is scheduled for public meeting on February 23, 2026.  

Contact

Jodi Whalen, Planner

Property

Part of Lot 10, Concession 2, Geographic Township of Lutterworth, municipally known as 1257 Canuck Trail, (see Key Map).

Property Owner

Karen Marshall and Jacqui MacNeil

Applicant/Agent

Karen Marshall and Jacqui MacNeil

Purpose of Application

The purpose of the application is to provide relief from the Township of Minden Hills Zoning By-law 06-10, as amended, to permit the construction of an addition to the rear of an existing cottage. The application will have the effect of providing relief from Section 4.8.4 of the By-law, to permit an increase in ground floor area of 25.6%, whereas the maximum increase is 25%. For more information see the site plans.

Status

The application is scheduled for public meeting on February 23, 2026.  

Contact

Jodi Whalen, Planner

Property

Part of Lot 28, Concession 7, Geographic Township of Minden, municipally known as 1062 Renown Drive, (see Key Map).

Property Owner

Laura and Jason Miller

Applicant/Agent

Laura and Jason Miller

Purpose of Application

The purpose of the application is to provide relief from the Township of Minden Hills Zoning By-law 06-10, as amended, to permit the expansion of a deck for a shed located 8.8 metres (29 feet) from the highwater mark of Soyers Lake. The application will have the effect of providing relief from Section 4.8.4, to permit the deck size to increase 40.8% or 7.9 square metres (85.3 square feet) whereas no increased size is permitted for structures within 15 metres (50 feet) of the shoreline and where otherwise non-complying structures are permitted a maximum increased size of 25%.For more information see the site plans.

Status

The application is scheduled for public meeting on February 23, 2026.  

Contact

Jodi Whalen, Planner

Sign up for Minden Hills News

Stay up to date on the Township's activities, events, programs and operations by subscribing to our News.